港城110对面苍梧双校区总价86万精装小三房还送 88

12000元/㎡

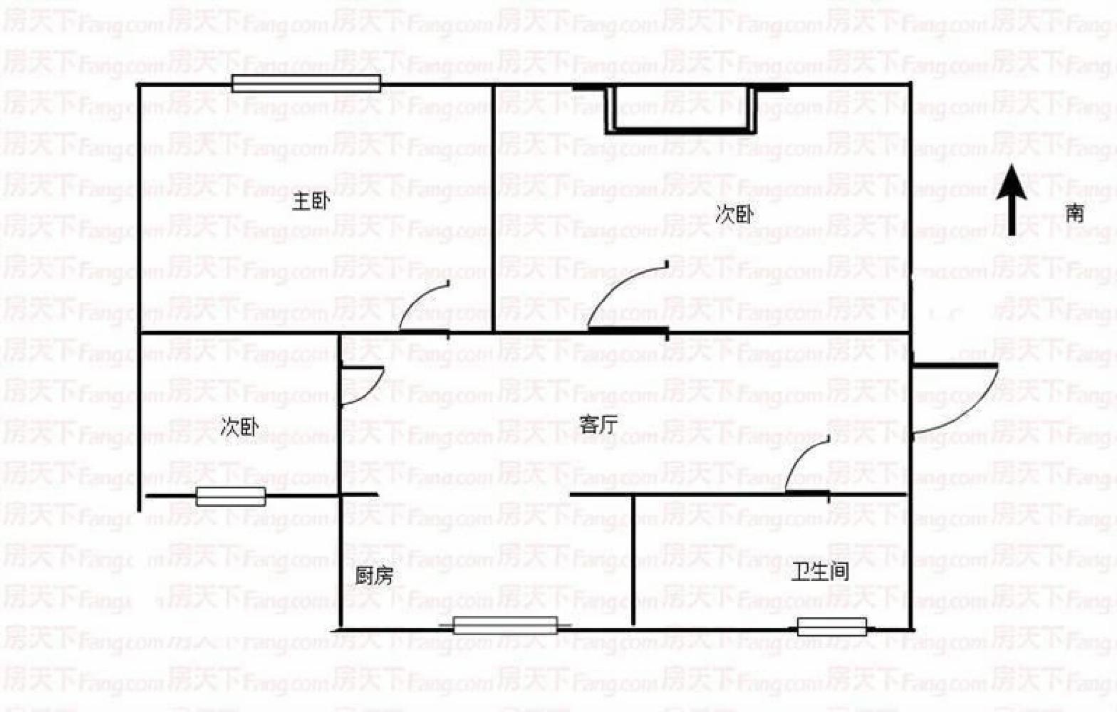
3室2厅1卫

户型

74㎡

建筑面积

南向

朝向

豪华装修

装修

1990年

建造年代

2层

共3层

住宅

房产类别

商品房

产权类型

70年

产权年限

-

有无电梯
房源动态
  • 100%

    看房处理

  • 1827

    已浏览

  • 0

    已预约

  • 2018-11-26

    最近登录

描述

核心卖点 
一、:
1、学区:苍梧小学 苍梧中学
2、税费:各付各税
3、户型:南北通透,户型方正,得房率高,全明化设计,布局合理,餐厨一体化 。
4、采光:超大楼间距,采光非常好,前后无任何遮挡
5、产权:产权明晰,无任何产权纠纷,产权人能随时到场签署合同
6、装修:精装修
                            
                                
                            
                        
                            售房原因:诚心卖房,因换房急售,价格可议!
                        
                    小区环境优雅,配套非常成熟,周边交通便利,居住舒适。
                            
                                
                          &

图片
位置
  • 交通地段
  • 教育机构
  • 医疗设施
  • 购物商超
  • 餐饮娱乐
猜您喜欢
免责声明:房源信息由网站用户提供,其真实性、合法性由信息提供者负责,最终以政府部门登记备案为准。本网站不声明或保证内容之正确性和可靠性,购买该房屋时,请谨慎核查。请您在签订合同之前,切勿支付任何形式的费用,以免上当受骗。
罗希贤经纪人

电话:

18761340592
手机看房源
同小区房源