急售新海中学津华苑124万四楼精装二室100平 124

12400元/㎡

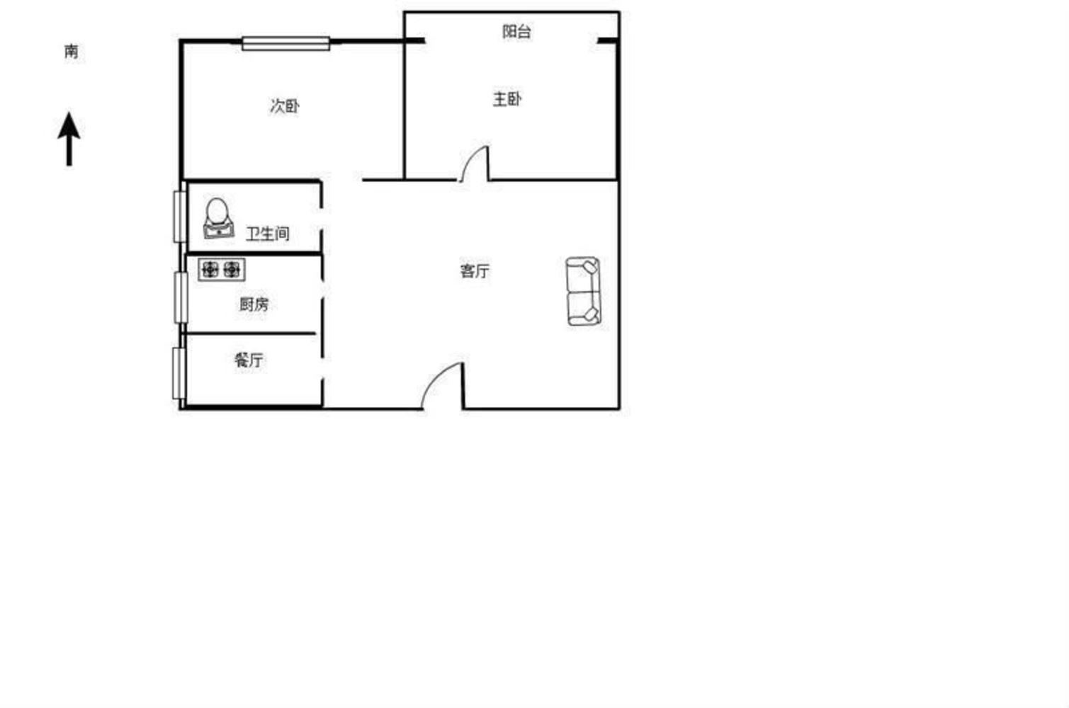
2室2厅1卫

户型

100㎡

建筑面积

南向

朝向

豪华装修

装修

2009年

建造年代

4层

共24层

住宅

房产类别

商品房

产权类型

70年

产权年限

-

有无电梯
房源动态
  • 100%

    看房处理

  • 1716

    已浏览

  • 0

    已预约

  • 2018-10-20

    最近登录

描述

核心卖点 
一、:
1、学区:新海中学
2、税费:各付
3、户型:南北通透,户型方正,得房率高,全明化设计,布局合理,餐厨一体化 。
4、采光:超大楼间距,采光非常好,前后无任何遮挡
5、产权:产权明晰,无任何产权纠纷,产权人能随时到场签署合同
6、装修:精装修
                            业主心态;房东换房、、、、、业主心态;房东换房、、、、、
                        
                            配套设施小区优势及周边配置:高端小区,绿化好,小区物业管理好,小区内人文素质高,交通方便,周边有大型超市,农贸市场!
                        
                            收取服务费:最高12400元(≤1%)服务介绍本公司另有四季金辉、恒大名都、东方瑞园、苍梧六期、苍梧三期、同科汇丰国际、明珠皇冠、公园壹号、双盛花园、天顺国际、兴业时代花园、颐和花园、杏坛小区、君悦财富广场、香溢世纪花城、香溢江南、温哥华国际花园、苍梧小区、平高府邸、中央华府、海连新天、金秋情缘、御景龙湾、凤凰名都、恒润郁州府、万润怡景苑、水木花园、淮海花园、万润一品苑、日月花园、博威江南明珠苑、润城东方、蓝天华侨城等多套精品房源在售,欢迎致电!

图片
位置
  • 交通地段
  • 教育机构
  • 医疗设施
  • 购物商超
  • 餐饮娱乐
猜您喜欢
免责声明:房源信息由网站用户提供,其真实性、合法性由信息提供者负责,最终以政府部门登记备案为准。本网站不声明或保证内容之正确性和可靠性,购买该房屋时,请谨慎核查。请您在签订合同之前,切勿支付任何形式的费用,以免上当受骗。
罗希贤经纪人

电话:

18761340592
手机看房源
同小区房源