急卖温哥华一楼带院子精装修3房送车库各付各税 165

12406元/㎡

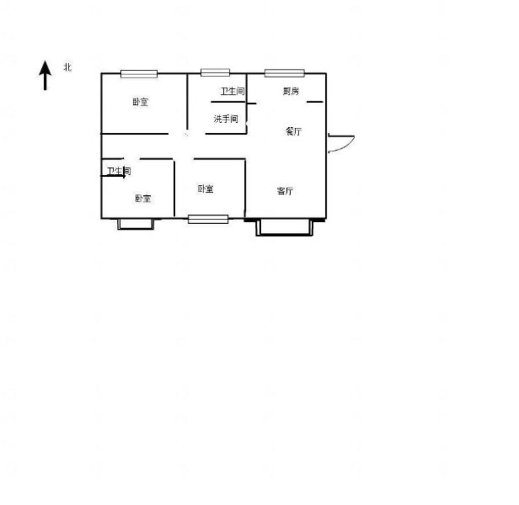
3室2厅2卫

户型

133㎡

建筑面积

南向

朝向

豪华装修

装修

2013年

建造年代

1层

共6层

住宅

房产类别

商品房

产权类型

70年

产权年限

-

有无电梯
房源动态
  • 100%

    看房处理

  • 1862

    已浏览

  • 0

    已预约

  • 2018-09-30

    最近登录

描述

核心卖点 
核心卖点 核心卖点 核心卖点 核心卖点 一、本房描述:
1.学区:学区.未占用
2.税费:各付各税。
3.户型:精品楼层,全明通透,布局合理,没有任何浪费面积
4.采光:黄金楼层,采光佳,前后无遮挡
5.产权:产权明晰无纠纷产权人能到场签署合同
                            房东诚意卖房,产权清晰,无纠纷,随时看房,随时过户!
                        
                            1.社区环境优越干净整洁,安静舒适,物业管理完善 !2.小区附近交通便利另有周边多路公交路线!3.地理位置优越,周边超市、银行、医院、菜场、生活便利!3.社区周围有幼儿园学校医院银行餐饮一应俱全让您尽可为小区带来无限潜力!
                        
                            收取服务费:最高8250元(≤0.5%)服务介绍本人从事房地产经纪行业多年,执着真诚服务,始终如一的从业理念,具有丰富的从业经验。熟悉小区各种户型,了解小区周边配套及未来发展规划,为您精确的计算购房的税费及首付,为您用心推荐适合您的房源。本人熟知交易流程,熟知商贷、公积金贷、组合贷等各项业务。真诚、专业、热情、周到。希望有机会为您提供专业的置业服务,为您找到满意的家!

图片
位置
  • 交通地段
  • 教育机构
  • 医疗设施
  • 购物商超
  • 餐饮娱乐
猜您喜欢
免责声明:房源信息由网站用户提供,其真实性、合法性由信息提供者负责,最终以政府部门登记备案为准。本网站不声明或保证内容之正确性和可靠性,购买该房屋时,请谨慎核查。请您在签订合同之前,切勿支付任何形式的费用,以免上当受骗。
罗希贤经纪人

电话:

18761340592
手机看房源
同小区房源