公园壹号、苍梧双校区、豪华装修基本硬装50万、家 260

18841元/㎡

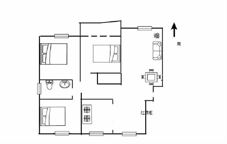
3室2厅2卫

户型

138㎡

建筑面积

南向

朝向

精装修

装修

2012年

建造年代

7层

共16层

住宅

房产类别

商品房

产权类型

70年

产权年限

-

有无电梯
房源动态
  • 100%

    看房处理

  • 1990

    已浏览

  • 0

    已预约

  • 2018-08-08

    最近登录

描述

核心卖点 
房源情况:
1、此房为商品房,可随时交易。
2、双学区房:苍梧双学区;
3、户型结构:户型是难得的朝南向,采光极佳,景观效果好,黄金楼层,非常适合老人带孩子上学、养老房人群或青年婚房等,小区物业管理非常完善,生活方便一步到位.
4、交通便利,社区品质高,小区绿化环境优质;
5、基本硬装50万、家具家电全进口
                            房东心态:房东诚意售房,真实房源,有意向者提前联系看房,非诚勿扰;
                        
                            小区附近配有超市、菜场、学校、医院、BRT,上班生活都特别方便。空调、冰箱、热水器等家电家具齐全,随时入住,是您生活居住的理想场所.
                        
                            温馨提示:本公司承诺发布房源真实可靠,房源报价均为房东真实报价,如对价格有疑问可在看好房后,当面与房东了解房子情况,沟通价格,顺利过户21世纪不动产真诚祝您能给自己最爱的人一个温馨的家。

图片
位置
  • 交通地段
  • 教育机构
  • 医疗设施
  • 购物商超
  • 餐饮娱乐
猜您喜欢
免责声明:房源信息由网站用户提供,其真实性、合法性由信息提供者负责,最终以政府部门登记备案为准。本网站不声明或保证内容之正确性和可靠性,购买该房屋时,请谨慎核查。请您在签订合同之前,切勿支付任何形式的费用,以免上当受骗。
罗希贤经纪人

电话:

18761340592
手机看房源
同小区房源