润城东方复试有阳光房南北通透一附小外国语价格可谈 148

11143元/㎡

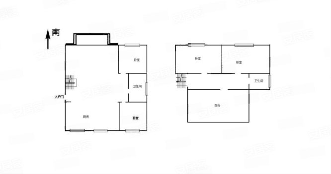
4室2厅2卫

户型

133㎡

建筑面积

南向

朝向

豪华装修

装修

2012年

建造年代

10层

共11层

住宅

房产类别

商品房

产权类型

70年

产权年限

-

有无电梯
房源动态
  • 100%

    看房处理

  • 2166

    已浏览

  • 0

    已预约

  • 2020-07-31

    最近登录

描述

核心卖点 
核心卖点
1.户型:**楼层,全明通透,布局合理,没有任何浪费面积
2.采光:采光佳,前后无遮挡
3.产权:产权明晰无纠纷产权人能到场签署合同
4.装修:图片房子实拍
看房请只联系我一个人,看房多了业主会觉得房子很好卖,价格不好谈!业主诚心卖房,谁先交钱是谁的!小区环境优雅,配套非常成熟,周边交通便利,居住舒适。21世纪不动产解放中路店  张继康进入房产工作四年 每一套房子的价格都是和房东沟通过的 ,每年有上百套成交案例。風險把控,政策解答,市场走势,房产评估是我的强项。欢迎致电(店),公司地址位于:解放东路万润顺泰园小区楼下西门门面房21世纪不动产。电话V、X同号。

图片
位置
  • 交通地段
  • 教育机构
  • 医疗设施
  • 购物商超
  • 餐饮娱乐
猜您喜欢
免责声明:房源信息由网站用户提供,其真实性、合法性由信息提供者负责,最终以政府部门登记备案为准。本网站不声明或保证内容之正确性和可靠性,购买该房屋时,请谨慎核查。请您在签订合同之前,切勿支付任何形式的费用,以免上当受骗。
张继康经纪人

电话:

18115995318
手机看房源
同小区房源