景山秀水二期!精装三室!送家电送车库!采光好!靠 116

11154元/㎡

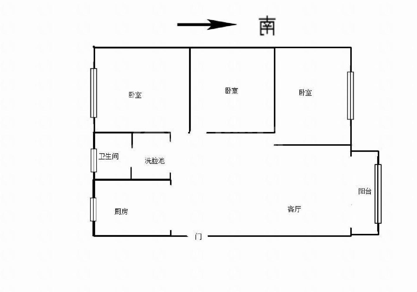
3室2厅1卫

户型

104㎡

建筑面积

南向

朝向

精装修

装修

2014年

建造年代

4层

共6层

住宅

房产类别

商品房

产权类型

70年

产权年限

有无电梯
房源动态
  • 100%

    看房处理

  • 672

    已浏览

  • 0

    已预约

  • 2022-08-25

    最近登录

描述

学校: 实验小学、海宁中学
户型:精装3室,南北通透。全明户型,布局合理,没有任何浪费面积
采光:楼层很好,采光佳,前后无遮挡
产权:产权明晰无纠纷产权人能到场签署合同
装修:图片完全真实,都是本公司人员现场拍摄,可以按照图片参考.
本人手里还大量房源在售,如玉龙花园、半山雅苑、龙河小区、 海宁小区、玉带新村、苍梧春晓、九龙城市乐园、兴业小区、南小区、世纪凤凰城、凤凰名都、陇园新村、新龙新村等,欢迎打电话给本人看房
业主诚心售房:外地,房子无产权纠纷。房产证齐全,大可放心过户。小区环境优雅,配套非常成熟,周边交通便利,居住舒适。本人从事房地产多年,公司有大量好房源,欢迎进入我的店铺查看,欢迎随时电话咨询,相信我的专业,为您置业安家保驾护航。

图片
位置
  • 交通地段
  • 教育机构
  • 医疗设施
  • 购物商超
  • 餐饮娱乐
猜您喜欢
免责声明:房源信息由网站用户提供,其真实性、合法性由信息提供者负责,最终以政府部门登记备案为准。本网站不声明或保证内容之正确性和可靠性,购买该房屋时,请谨慎核查。请您在签订合同之前,切勿支付任何形式的费用,以免上当受骗。
孙婷经纪人

公司:

连云港泽安不动产经纪有限公司

电话:

17751863289
手机看房源
同小区房源