博威江南明珠苑家电家具全送中间楼层前无遮挡福园名 158

10972元/㎡

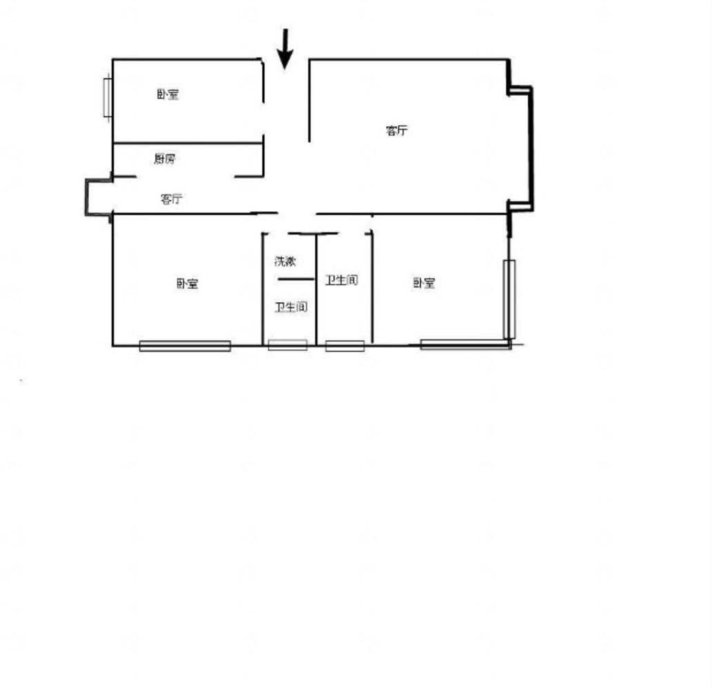
3室2厅2卫

户型

144㎡

建筑面积

南向

朝向

豪华装修

装修

2014年

建造年代

10层

共33层

住宅

房产类别

商品房

产权类型

70年

产权年限

-

有无电梯
房源动态
  • 100%

    看房处理

  • 1907

    已浏览

  • 0

    已预约

  • 2019-01-05

    最近登录

描述

核心卖点 
1、房屋格局方正,大厅两卧朝南,南北通透。采光一流,全天采光,小区绿化率达到40%,多种绿色植被,纯天然的氧吧,还有各种健身器材,让你的生活更健康。
2、本小区物业多次被评为优秀物业”,小区实行人车分流,无需担心老人小孩在小区的安全问题。3、出门步行十分钟到超市,购物方便,楼下就是公交车站,出行方便。
4、地段好,有巨大的空间。
            
            
        
            房东诚心售房,看房方便。因工作调动忍痛割爱 。 
 儒房地产在本市有大量待售房源,一定能为您匹配到合适的安居之所
        
    小区环境优雅,配套非常成熟,周边交通便利,居住舒适。
            
            
        
            我不能降低房价,但是能让你不高价买房! 
 看到这条信息的你,不知道是去年考虑买房,还是今年考虑买房 
 如果去年你想买房,那么很遗憾你错过了好机会 
 房价涨了多少我想你清楚 
 现在还有一次机会,就是现在不是明天不是下个月 
 想买房的话趁现在吧!

图片
位置
  • 交通地段
  • 教育机构
  • 医疗设施
  • 购物商超
  • 餐饮娱乐
猜您喜欢
免责声明:房源信息由网站用户提供,其真实性、合法性由信息提供者负责,最终以政府部门登记备案为准。本网站不声明或保证内容之正确性和可靠性,购买该房屋时,请谨慎核查。请您在签订合同之前,切勿支付任何形式的费用,以免上当受骗。
张典经纪人

电话:

13912188683
手机看房源
同小区房源