1.33万一平惊爆万达广场边四季金辉经典3房方正 156

13288元/㎡

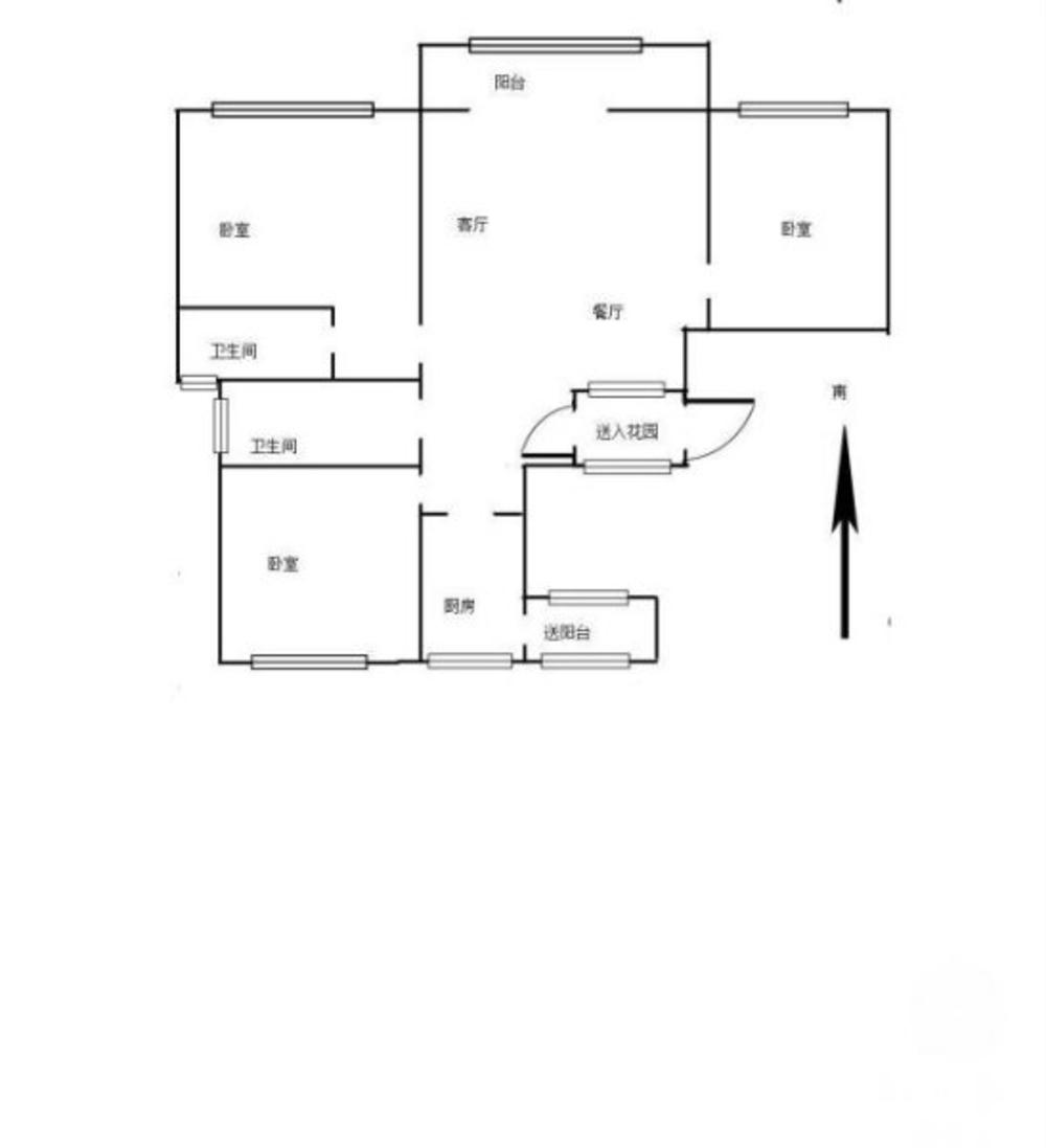
3室2厅1卫

户型

118㎡

建筑面积

南向

朝向

毛坯

装修

2015年

建造年代

22层

共22层

住宅

房产类别

商品房

产权类型

70年

产权年限

-

有无电梯
房源动态
  • 100%

    看房处理

  • 1867

    已浏览

  • 0

    已预约

  • 2018-12-09

    最近登录

描述

核心卖点 
本小区物业多次被评为优秀物业”,小区实行人车分流,无需担心老人小孩在小区的安全问题。3、出门步行5分钟到万达广场,购物方便,楼下就是公交车站,距离BRT站也不到十分钟的路程,出行方便。4、地段好
                            
                                
                            
                        
                            房东闲置房产诚心售房,欢迎看房,随时恭候你的到来.
                        
                    小区环境优雅,配套非常成熟,周边交通便利,居住舒适。
                            
                                
                            
       &n

图片
位置
  • 交通地段
  • 教育机构
  • 医疗设施
  • 购物商超
  • 餐饮娱乐
猜您喜欢
免责声明:房源信息由网站用户提供,其真实性、合法性由信息提供者负责,最终以政府部门登记备案为准。本网站不声明或保证内容之正确性和可靠性,购买该房屋时,请谨慎核查。请您在签订合同之前,切勿支付任何形式的费用,以免上当受骗。
张典经纪人

电话:

13912188683
手机看房源
同小区房源