抢房(登泰新村)解放路新海多层3楼送买2个买断车 119

8947元/㎡

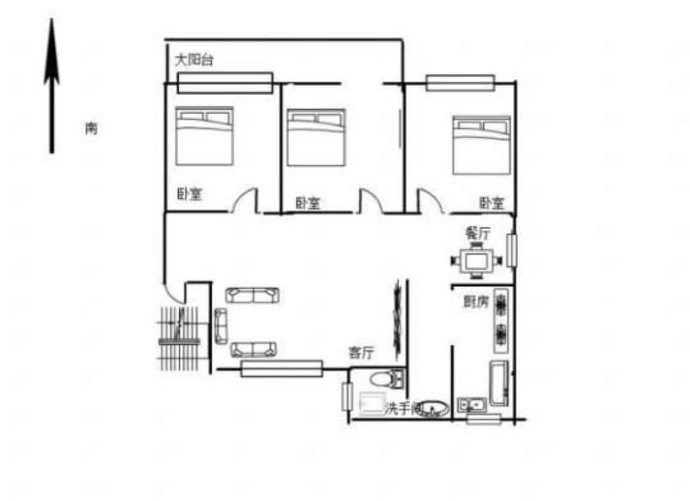
3室2厅1卫

户型

133㎡

建筑面积

南向

朝向

简单装修

装修

1998年

建造年代

3层

共6层

住宅

房产类别

商品房

产权类型

70年

产权年限

-

有无电梯
房源动态
  • 100%

    看房处理

  • 1857

    已浏览

  • 0

    已预约

  • 2018-09-27

    最近登录

描述

核心卖点 
亲爱的朋友,欢迎您来到【登泰新村】:本人亲自实勘
1.户型:三室两厅已卫,面向朝南,采光非常好,让您每天早上享受美好缕阳光。
2.装修:居家的精装,实用面积很大,家具家电全送,室内非常温馨。
3.小区:物业好,绿化好,居住人群素质好,邻里和睦,远亲不如近邻给您家的温暖。
4.配套:解放路小学,新海中学,让您的宝宝赢在起跑线线上,成熟小区,早中晚都能享受各种各样的美味,周围有超市、公园、建行、邮储。
                            业主心态 1.房东自己在别的地方看好房子了 ,人口多换大房子 ,定金已交,诚心快速卖房。
                        服务范围:兴业金色家园、香溢世纪花城、香溢江南、同科汇丰国际、星海湖壹号、海连新天、明珠皇冠、中央华府、金秋情缘、苍梧三期河滨花园、颐和花园、杏坛花园、双盛花园、杰瑞花园、秀逸苏杭、凤凰名都、四季金辉、列奇达花园广场、水木华园、公园新村、公园小区、巨龙小区、老市委大院、金竹苑、翠竹苑、金龙花园、恒大名都、东方瑞园、瑞景花园、宝泰新村、博纳花园、兴城公寓、金茂花园、新港国际、三禾城中城、极美苑、融发公寓、供销小区、玫瑰苑、祥和园、瑞祥园、东大新村、登泰新村、兆隆新村、新贵都、郁香邨公寓、恒利花园、
                            收取服务费:最高11900元(≤1%)本人从事此行业三年以上,由于我的真诚和专业,赢得了很多客户和业主的信任。同样希望我的真诚和专业,也能为您找到合适您的家,同时给到您的认可。专业,诚信,24小时竭诚为您服务!.如果您在房产方面有问题或是疑虑,请拨通我的手机,我会耐心的解答你的问题。恭候您的佳音!

图片
位置
  • 交通地段
  • 教育机构
  • 医疗设施
  • 购物商超
  • 餐饮娱乐
猜您喜欢
免责声明:房源信息由网站用户提供,其真实性、合法性由信息提供者负责,最终以政府部门登记备案为准。本网站不声明或保证内容之正确性和可靠性,购买该房屋时,请谨慎核查。请您在签订合同之前,切勿支付任何形式的费用,以免上当受骗。
罗希贤经纪人

电话:

18761340592
手机看房源
同小区房源