东瑞花园排屋带院子豪华装修送家具家电送车库 520

19118元/㎡

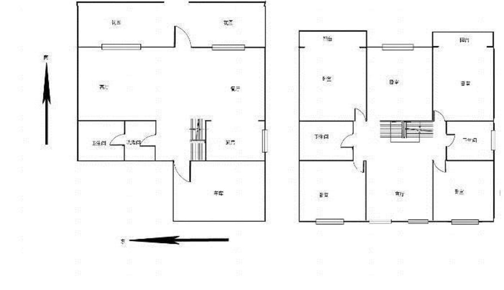
5室2厅2卫

户型

272㎡

建筑面积

南向

朝向

精装修

装修

2012年

建造年代

1层

共4层

住宅

房产类别

商品房

产权类型

70年

产权年限

-

有无电梯
房源动态
  • 100%

    看房处理

  • 1930

    已浏览

  • 0

    已预约

  • 2018-12-18

    最近登录

描述

核心卖点 
核心卖点 房间布局合理,没有任何浪费面积,高档小区,绿化优美,物业管理规范,交通非常便利!
本公司房源充足,另外有多套房源出售,没办法在网络上一一呈现,所以看房时候一定带您多看几套,来电也可以告知另外的类似房源。
                            
                                
                            
                        
                            1、产权清晰,无查封,无不良记录,方便交易。 
 2、业主诚心出售,价格真实报价,看房提前预约 
 3、更多详情可以咨询我,微信同号
                        
                    小区环境优雅,配套非常成熟,周边交通便利,居住舒适。
                            
                                
                 

图片
位置
  • 交通地段
  • 教育机构
  • 医疗设施
  • 购物商超
  • 餐饮娱乐
猜您喜欢
免责声明:房源信息由网站用户提供,其真实性、合法性由信息提供者负责,最终以政府部门登记备案为准。本网站不声明或保证内容之正确性和可靠性,购买该房屋时,请谨慎核查。请您在签订合同之前,切勿支付任何形式的费用,以免上当受骗。
罗希贤经纪人

电话:

18761340592
手机看房源
同小区房源